Open Widget Area
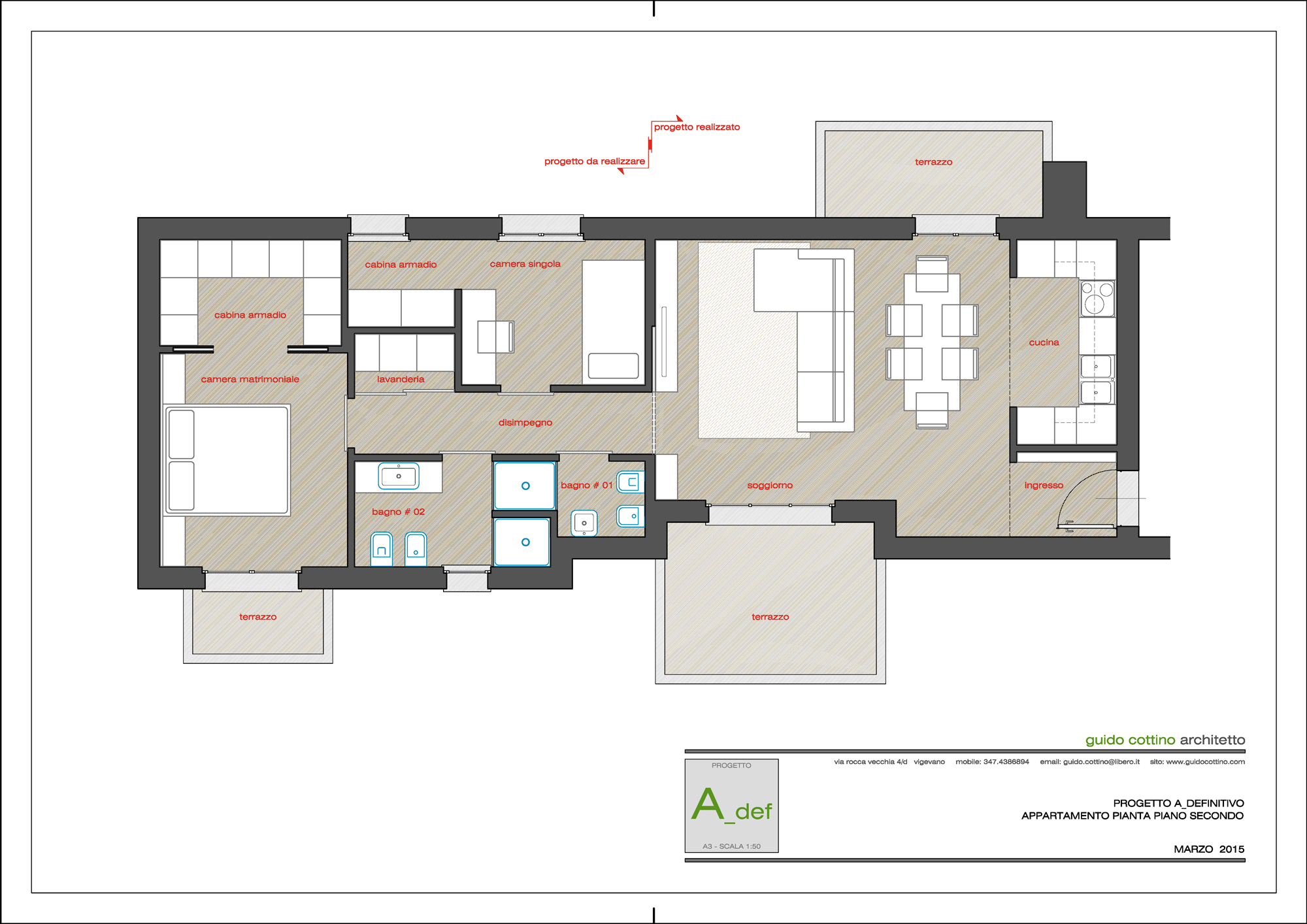
Casa #01_2015 – Soggiorno